Skip To Content

15D Cats Eye Run

Highlands, NC 28741
  • $749,000
  • STATUS: Active
  • ON SITE: 234 Days
  • MLS #: 1001920
UPDATED: 20 min ago
$749,000
  • 2
    BEDS
  • 0.32
    ACRES
  • 1
    BATHS
  • 0
    1/2 BATHS
Type:
Manufactured Home
Built:
2025
County:

School Ratings & Info

Description

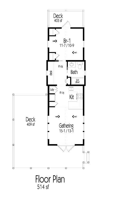
Looking for a fabulous mountain getaway cottage? We have exactly the place for you. Living the life of luxury while living simply has never been easier. This Jeffrey Dungan Low Country XL designed cottage allows you to embrace minimalism without giving up the modern home features you crave. This includes top of the line home appliances from Summit Appliance, Ply Gem aluminum clad wood windows optimized for energy efficiency, 7” oak hardwood flooring, Delta faucets and beautiful quartz countertops. Heated and cooled with 2 Mitsubishi mini splits for efficiency on each level.

Monthly Payment Calculator



© 2026 Highlands-Cashiers Board of Realtors®. All Rights Reserved. IDX information is provided exclusively for consumers' personal, non-commercial use and may not be used for any purpose other than to identify prospective properties consumers may be interested in purchasing. Information is deemed reliable but is not guaranteed accurate by the MLS or Berkshire Hathaway HomeServices Meadows Mountain Realty. Data last updated: 2026-05-19T17:17:14.53.
www.cashiershomesearch.com/homes/168298766
Print Image

15D Cats Eye Run Highlands, NC 28741

  • Price: $749,000
  • Status: Active
  • On Site: 234 Days
  • Updated: 20 min ago
  • MLS #: 1001920
2
Beds
1
Baths
0
½ Baths
0.32
Acres
2025
Built
Neighborhood:
The Preserve At Whiteside Cliffs
County:
Jackson
Area:
Whiteside Cove
Property Description
Looking for a fabulous mountain getaway cottage? We have exactly the place for you. Living the life of luxury while living simply has never been easier. This Jeffrey Dungan Low Country XL designed cottage allows you to embrace minimalism without giving up the modern home features you crave. This includes top of the line home appliances from Summit Appliance, Ply Gem aluminum clad wood windows optimized for energy efficiency, 7” oak hardwood flooring, Delta faucets and beautiful quartz countertops. Heated and cooled with 2 Mitsubishi mini splits for efficiency on each level.
Exterior Features

Architectural Style Cabin Cottage Manufactured Home Carport Spaces 0 Carport YN No Covered Spaces 0 Exterior Features Rain Gutters Propane Tank - Leased Foundation Details Block Garage YN No Parking Features Driveway Gravel Patio And Porch Features Rear Porch Deck Front Porch Side Porch Roof Shake View Mountain(s) Creek / Stream View YN Yes Waterfront Features Stream

Interior Features

Appliances Built- In Electric Range Dryer Free- Standing Electric Oven Disposal Propane Cooktop Refrigerator Tankless Water Heater Washer Basement Crawl Space Concrete Bathrooms Total Integer 1 Cooling Electric Cooling YN Yes Fireplace Features None Fireplace YN No Flooring Wood Heating Ductless Electric Heating YN Yes Interior Features Beamed Ceilings Breakfast Bar Open Floorplan Stone Counters Recessed Lighting Laundry Features In Hall Levels One

Property Features

Accessibility Features None Association Fee 3600 Association Fee Frequency Annually Association YN Yes Community Features Gated Construction Materials Modular / Prefab Metal Siding Shake Siding Wood Siding Electric Generator Furnished Unfurnished Lease Considered YN No Lot Features Gentle Sloping Few Trees Views New Construction YN Yes Property Sub Type Manufactured Home Property Sub Type Additional Manufactured Home Road Surface Type Asphalt Gravel Paved Security Features Gated Community Smoke Detector(s) Sewer Engineered Septic Shared Septic Tax Annual Amount 0 Tax Lot 15 D Tax Year 2025 Utilities Fiber Optic Available High Speed Internet Available Propane Underground Utilities Water Source Shared Well Zoning Description Residential

Listing provided courtesy of Grace Battle of Cashiers Sotheby's International Realty: 828-743-3411.


© 2026 Highlands-Cashiers Board of Realtors®. All Rights Reserved. IDX information is provided exclusively for consumers' personal, non-commercial use and may not be used for any purpose other than to identify prospective properties consumers may be interested in purchasing. Information is deemed reliable but is not guaranteed accurate by the MLS or Berkshire Hathaway HomeServices Meadows Mountain Realty. Data last updated: 2026-05-19T17:17:14.53.
 
https://bt-photos.global.ssl.fastly.net/hcbor/1280_boomver_2_1001920-2.jpg https://bt-photos.global.ssl.fastly.net/hcbor/1280_boomver_2_1001920-2.jpg https://bt-photos.global.ssl.fastly.net/hcbor/1280_boomver_2_1001920-2.jpg
Logo
Berkshire Hathaway HomeServices Meadows Mountain Realty
196 Burns Street
Cashiers NC, 28717